площадью 13,00 м2, по цене 763742 по адресу Берёзовая аллея - 9стр2

Цена 763 742 р.
Район Отрадное
Адрес Берёзовая аллея, 9стр2
Площадь помещения 13 м2
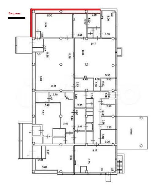
Продам помещение свободного назначения площадью 13 кв.м в 4 мин. транспортом от м.Владыкино, район Отрадное. Продается нежилое помещение площадью 13.2 кв.м. (стеклянная витрина) Адрес: Российская Федерация, город Москва, вн.тер.г. муниципальный округ Отрадное, аллея Берёзовая, дом 9, строение 2, помещение 1Б/1 Кадастровый номер: 77:02:0008009:5984 Номер, тип этажа, на котором расположено помещение, машино-место: Этаж № 1 Запись о регистрации права собственности в ЕГРН: Собственность 77:02:0008009:5984-77/009/2019-6 от 28.10.2019 Ограничение прав и обременение объекта недвижимости: не зарегистрировано. Данное помещение витрина. Продавец Юридическое лицо.
Объявление № 23131363
Дата подачи:
3 августа 2025 г. 7:29
Дата обновления:
3 августа 2025 г. 4:00
Просмотров 8 Хотите продать быстрее?

Продавец
Татьяна
Показать номер телефона
Пожаловаться
Комментарии:
Добавить